freistehendes 2 Familienhaus mit Gewerbefläche

Beschreibung

Baujahre:                  Hauptgebäude 1891, Anbauten 1907/1914, 
                                  Werkstattgebäude incl. Garage Baujahr 1981,  Doppelgarage Baujahr 2000
Grundstücksgröße:   1150 m² Das Grundstück grenzt rechts an das Reichsbahngelände.
                                  Das hinter dem Haus liegende Gartengrundstück endet mit dem Mandauverlauf,
                                  welche tiefer liegt. 
Gebäude:         Hauptgebäude massiv mit Mansarddach mit massivem 1-geschossigen 
                         Anbau mit Pultdach, Doppelgarage und Werkstatt incl. Garage 
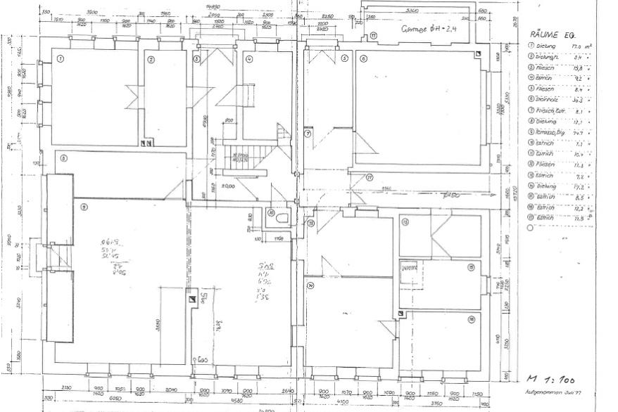
Flächen:                 EG -  Ladenlokal, Büroraum und Lager insges.  - ca. 150 m² - leerstehend
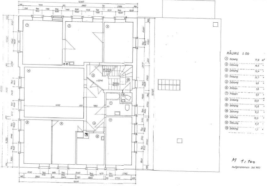
                        1.OG wurde in 2 Wohneinheiten  geteilt , 3 RWE – 90 m² und 2 RWE 50 m² 
                        Beide Wohnungen leerstehend. 
                        DG  – 1 Wohneinheit - 3 RWE ca. 63 m² Wfl. - vermietet
Ausstattung:        Modernisierungsmaßnahmen wurden in den Jahren von 1975 bis 1993 
                        durchgeführt. z.B. Ladenraummodernisierung, neue Schaufensteranlage, 
                        Der Dachgeschossausbau erfolgte 1993 - Einbau einer Gasetagenheizung, 
                        großes Bad mit Wanne und Dusche.
Dacheindeckung Mansardflächen mit Schieferbelag, 
Flachdach mit Bitumendachdeckung  
im EG und 1.OG Gasaußenwandheizung, Doppelgarage mit Sektionaltor 
Medien: Wasser- und Abwasseranschluss, Strom, Erdgas,

Kaufpreis:              VB 65.000,00 € 
Käuferprovision:    3,57 %  des Kaufpreises incl. 19% MwSt 

Alle Angaben wurden vom Eigentümer vorgegeben – Haftungsansprüche werden ausgeschlossen.
Unsere allgemeinen Geschäftsbedingungen sind Bestandteil dieses Angebotes.
Sollten Sie noch weitere Fragen haben, stehen wir Ihnen gern zur Verfügung.

Zurück zu anderen ausgewählten Suchergebnissen

Überblick

Adresse Seifhennersdorf - Ortszentrum

Bestimmung:   Verkauf  

Kategorie:   Mehrfamilienhäuser  

Land: Deutschland

Stadt: Seifhennersdorf

Etage:   k.A.  

Wohnfläche: 200 m²

Verkaufspreis: 65.000,00 €

Kaution:   keine  

Besucheranzahl: 33

 Druckversion

Ausstattungsmerkmale

  • true  Gas-Zentralheizung

Immobilien Adresse

Bildergalerie



Überblick

Adresse Seifhennersdorf - Ortszentrum

Bestimmung:   Verkauf  

Kategorie:   Mehrfamilienhäuser  

Land: Deutschland

Stadt: Seifhennersdorf

Etage:   k.A.  

Wohnfläche: 200 m²

Verkaufspreis: 65.000,00 €

Kaution:   keine  

Besucheranzahl: 33

 Druckversion

Anfrage von


 

 

TRI-Immobilien Inh. Cornelia Marter
Markt 5 im 1.OG | 02763 Zittau

+49 (0)3583 - 51 23 21 | +49 (0)170 - 20 33 452
+49 (0)3583 - 79 50 23
info@immobilien-marter.de